マルタ設計長野 サイトマップ

自分らしい家造りをサポートします

自分らしい家造りとは? 自分らしい家が完成するまでの期間 自分らしい家造りの手順 自分らしい家造りをしたお客様の声
事務所概要 取扱業務 プロフィール 問合せ方法

良勝田(仮名)さん宅の
家が出来るまでの日記



メール初心者の方へ

文章内に出てくる「>」は前のメール文章の引用を表します。
読み進めると重複していることに気が付くと思います。

問い合わせ〜敷地確認まで 4月
敷地の大きさ〜坪単価まで 5月
動線プラン〜概算見積りまで 6月
3Dパースの打合せ〜試掘 7月
試掘の疑問〜最終全体金額確認 8月
業者見積り出し〜 9月
完成写真 3月

9月

業者見積り出し

9月1日
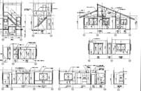
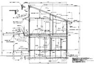
D建設に見積もり用の設計図を渡した
最終図は以下である

1階平面図

2階平面図

立面図

矩計図

展開図

配置図
この他にも仕上げ表、建具表、平面詳細図、キッチン図、電気・設備図もある

最終的に予算が合わなければ業者を変えて再見積りの必要が出てくる
概算予算から増えた部分を考慮して全体金額を出しているので大体予算内に納まると思う

結果が楽しみなような不安なような気分である
9月11日
9月7日に良勝田(仮称)さん宅で打合せを行った
打合せ記録をまとめて良勝田(仮称)さんにメールを送った
今日は雨です
涼しくなったと思ったら梅雨にまた入ってしまったような感じです。ちょっと早いですけど・・・

前回打ち合わせさせて頂いた内容をまとめました
確認して下さい

1.外壁はカラー鉄板サイディングでOK
2.ロールスクリーンは金額を見直す(15,500円に見直し)
3.カーポートはハイルーフに変更する
4.建物の位置は地縄張りにて確認する
5.北側の軒ドイはやめ
6.プロパン置き場とオイルタンクには雪囲いが出来るようにする
7.北側の雨水排水関係の桝はやめ
8.照明器具の変更(別紙参照)
  階段はブラケットに変更
  寝室はダウンライトに変更
  子供室はシーリングライトに変更
  各器具の品番変更等
  スイッチの位置確認
9.FF暖房機は長府製作所のBH-7120GBとする
  (木造19畳、6100〜1180Kcal/h)
10.建具の形状確認OK
11.水切り棚+飾り棚確認OK
12.コンセント、TV、TEL位置の確認OK
13.オーブンはオーブンレンジとして家電収納に置く
14.妻側の窓には庇を取り付けている
15.水切り棚にはコンセントは無しとする
16.パソコン用空配管は無しとする
17.物干し金物は無しとする
18.基礎コンクリートの高さは700oとなっている
19.給油バブルをデッキ階段部分に設ける

以上だったと思います
勘違いがありましたらご連絡ください

図面を確認して頂いて何かありましたらお気軽にお聞き下さい
3Dパースと平面図、展開図を見ると更に理解しやすいと思います
(3Dパースはちょっと違うところがあるかも知れません)


後、確認申請の許可が降りたと新井市から連絡がありました

八十二銀行からの融資予約通知書が届いて、D建設との工事費が決定すればいよいよ工事着工です

現実的に良勝田(仮称)さんの家が出来上がっていきます

楽しみですね!
最終のチェックを良勝田(仮称)さんにしてもらった
大体の色の話もして方向性を確認した

勘違いが無く進められるようにメールでの打合せ記録を送っているので間違いが少なくなると思う
9月13日
良勝田(仮称)さんからメールが届いた
  昨日は1日中雨でしたが、今日はまた夏みたいに暑い
  ですね。

> 前回打ち合わせさせて頂いた内容をまとめました
> 確認して下さい

打ち合わせ内容に間違いはありません。
ただ、またまた変更したくなってしまいました。
玄関ポーチの照明なんですが、先日の打ち合わせの時は小泉の物にしたと思うのですが、その翌日ナショナルの照明の最新カタログが届きまして、新製品で気に入った物を見つけてしまいました。
それから玄関ドアなんですが、アルべーロというシリーズに木目調で好みの色があったのですが、どうでしょうか。
こういう事は次の打ち合わせの時でいいのでしょうか。

> 後、確認申請の許可が降りたと新井市から連絡が
> ありました
 
> 八十二銀行からの融資予約通知書が届いて、D建設
> との工事費が決定すればいよいよ工事着工です
>
> 現実的に良勝田(仮称)さんの家が出来上がっていきます
>
> 楽しみですね!

本当に楽しみです。いろいろな事が決まってきて、本当に自分達の家ができるんだぁ、と実感がわいてきます。
見積もりがとっても心配ですが。
変更が少し出た
これからも、少しづつ変更は出てくるかも知れない

建築の答えは一つだけではない。答えはいくつでもある
そして、どれが正解ということもない

正解があるとすれば建主が満足する選択が出来た時ということが言えると思う

人間の感覚は千差万別である。人の言う事が正しい訳ではなく、自分が感じた事が自分にとっての正解といえると思う

ただ、問題なのは時間と共に感覚が変化するという事である
これは、建主の建築に対する成長だったり、好みの変化からくる
だから、選択は難しい

設計者としては20年、30年経っても良い家を設計して貰えたと言ってもらえる住宅設計を目指したい

それには設計者の先見の目が要求される。そして、建主にも理解と妥協をして貰いたい

設計者は全体的なバランスを見ながら全てを選択している
良い物の寄せ集めが良い住宅になるとは限らないことを建主に十分理解して貰いたい

業者見積り

9月21日
D建設から見積りが出てきた
最初の見積り金額はかなり高かったので「予定価格から大分離れていますね」という話をした
値引きをして2400万円という話にまではなった

仕様変更を提案して、コストダウンをするように話をした

1.基礎コンクリートの撥水材をやめる
2.照明器具をマルタ推薦業者から購入
3.断熱材のグレードダウン
4.床材のグレードダウン
5.サッシを樹脂複合からアルミだけの断熱サッシにする
6.デッキ部分の外壁を木の羽目板から鉄板サイディングにする
7.車庫の土間コンクリートを砕石だけにする

などである

その後、所長と打合せを行った

値引き後の工事費             2400万円
車庫と土間コンクリートをやめる    △115万円
基礎部分の撥水材の吹付をやめる   △12万円
照明器具をマルタ推薦業者から購入  △20万円
−−−−−−−−−−−−−−−−−−−−−−−
                         2253万円

これで、良勝田(仮称)さんと打合せをする事とした
9月22日
良勝田(仮称)さんからメールが届いた
> 見積金額は税抜きで31,920,853円で値引きが
> 6,390,853円ですので25,530,000円で出てきています
>
> 更に値引きをして24,000,000円まではなんとか頑張
> れるということで最初話しました

値引き前の金額がすごくてびっくりです。値引き額もすごいですが。

> 値引き後の工事費             2400万円
> 車庫と土間コンクリートをやめる    △115万円
> 基礎部分の撥水材の吹付をやめる   △12万円
> 照明器具をマルタ推薦業者から購入  △20万円
> −−−−−−−−−−−−−−−−−−−−−−−
>                          2253万円

土間コンクリートはやめない方が良いんじゃないかと主人が言ってますので、その代わりにデッキ部分の外壁の木の羽目板をやめたらどの位のダウンになりますか。
それから基礎の撥水材というのはやめても支障ないものなんでしょうか。
ちょっと勘違いをされている
車庫と土間コンクリートは全てを止めるというつもりだった
文章表現が難しい所である
9月22日
再び、良勝田(仮称)さんにメールを送った
大変申し訳ありません
車庫部分の表現に間違いがありました
車庫を以前のお話のようにやめるということで入力しようとしていたのですが間違えました


> > 値引き後の工事費             2400万円
> > 車庫と土間コンクリートをやめる    △115万円
> > 基礎部分の撥水材の吹付をやめる   △12万円
> > 照明器具をマルタ推薦業者から購入  △20万円
> > −−−−−−−−−−−−−−−−−−−−−−−
> >                          2253万円

以下変更です

値引き後の工事費             2400万円
車庫をやめる                △115万円
基礎部分の撥水材の吹付をやめる   △12万円
照明器具をマルタ推薦業者から購入  △20万円
−−−−−−−−−−−−−−−−−−−−−−−
                         2253万円

大変申し訳ありません

> 土間コンクリートはやめない方が良いんじゃないかと主人が
> 言ってますので、その代わりにデッキ部分の外壁の木の
> 羽目板をやめたらどの位のダウンになりますか。

上記のように入力ミスがありました。以前のお話のように車庫は無しということで如何でしょうかというお話です
ご検討ください


羽目板の件ですが33uで14,970円/uですので494,010円です
鉄板サイディングが33uで7,460円/uですと246,180となります
差額が247,830円です値引率が掛かりますので20万前後になると思います
羽目板の方が雰囲気が良いと思います
(鉄板はへこむので人の手の触れるところはさけた方が良いと思います)

> それから基礎の撥水材というのはやめても支障ないものなんでしょうか。

一般的には撥水材は吹き付けません(基礎の低い場合)今回吹き付けるようにしたのは雪が多いので基礎部分に水が進入し難いようにということとコンクリートが劣化を遅らせる効果があるので吹き付けることにしていました

水の進入と言ってもコンクリートにも防水性はあります
ただ、徐々に染みていくので長い冬の間にどうかなと思ったので図面に書き込んで置きました

劣化はすごく強度が落ちる訳ではありませんが強度が徐々に強くなり、徐々に落ちていきます
住宅で必要な強度としては問題にならない程度です

どちらの意味からも絶対必要ということではなく吹き付けてあればプラスα良くなるというものです

ですので問題ありません

やれば良くなるというものは沢山あります。ですが、やればお金が掛かるので一長一短です


入力ミスがあり大変申し訳ありませんでした

よろしくお願いします


全体金額の確認です
数字が何度か動いているので再確認しました

1.公庫融資金額    2400万円
2.自己資金        700万円+180万円
−−−−−−−−−−−−−−−−−−
               3280万円
3.土地購入費      -520万円
−−−−−−−−−−−−−−−−−−
               2760万円
3a.下水道引き込み   -21万円
−−−−−−−−−−−−−−−−−−
               2739万円
4.諸経費         -158万円(参考)
−−−−−−−−−−−−−−−−−−
               2581万円
5.消費税         -129万円(工事費、設計料)
−−−−−−−−−−−−−−−−−−
               2452万円
6.設計料         -230万円
−−−−−−−−−−−−−−−−−−
               2222万円
7.業者概算       -2200万円(車庫無し)
−−−−−−−−−−−−−−−−−−
                 22万円
8.NTT引き込み      -2万円
9.水道加入金       -9万円
−−−−−−−−−−−−−−−−−−
                 11万円
以上です

業者概算を2200万円で見直してみるとカーテン、レース、レール、下駄箱、ポスト代がちょっと厳しいです

もう少し金額を落としたいということになると変更が必要になると思います

如何でしょうか
落としたいかどうか返答をお願いします
落とす案を提案させて頂きます

よろしくお願いします
まだ、金額を落すとなるとユニットバスやシステムキッチンの見直しが必要になるだろう
9月22日
良勝田(仮称)さんからメールが届いた
車庫は止めるということで進めたい、デッキ部分の羽目板は木製にしたい、撥水材は止めるということで進めたいという内容だった
これ以上は金額を落さなくて済むように資金をなんとか考えてみるとのことだった

取り合えず変更内容をD建設に話して再度金額交渉をすることになった

工事金額の決定

9月27日
D建設と変更内容と工事金額の打合せを行った
2200万円で了承を取った
予算内に最終的にも納められたのでとても良かったと思う。安心した

支払いの話しが出て頭金で1/3、中間で1/3、最後に1/3にしてもらいたいとのことだった
9月27日
良勝田(仮称)さんにメールを送った
今日は本当に寒いです
うちの坊ちゃんは風邪を引いて保育園を休みました

夜中何も掛けないで寝ていたのでは風邪も引きますよね
といっても飛び回っていますけれども・・・

工事費の方ですがD建設さんには2200万円でOKしていただいています

28日に契約書の下書きを貰って打ち合わせをしようと思っています

契約内容と見積書、図面を付けて契約書とするように考えています
これは見積と図面に書かれている内容での契約をするということになります

契約は3,4日で地鎮祭が8,12,13日になると思います

ご都合は如何ですか

又、地鎮祭についてお考えはありますか

やらないという人もいるようです
私はお祭りごとなのでやった方が良いと思いますが如何でしょうか

あまり盛大にやると良勝田(仮称)さんの負担が大きいと思いますので現地に神主さんを呼んでお祓いをして頂くということで如何かと思います

神主さんは何方かお知り合いはいらっしゃいますか

いなければD建設さんから紹介してもうらうということになると思います

ご検討下さい
いよいよ工事が始まろうとしている
出来あがっていく現場は楽しいものである
良勝田(仮称)さんと一緒に考えてきた住宅が現実のものとしてこの世に誕生する
とても楽しいことであり、大変なことだ
いろいろ問題も発生すると思うが頑張っていきたい
3月



トップページ