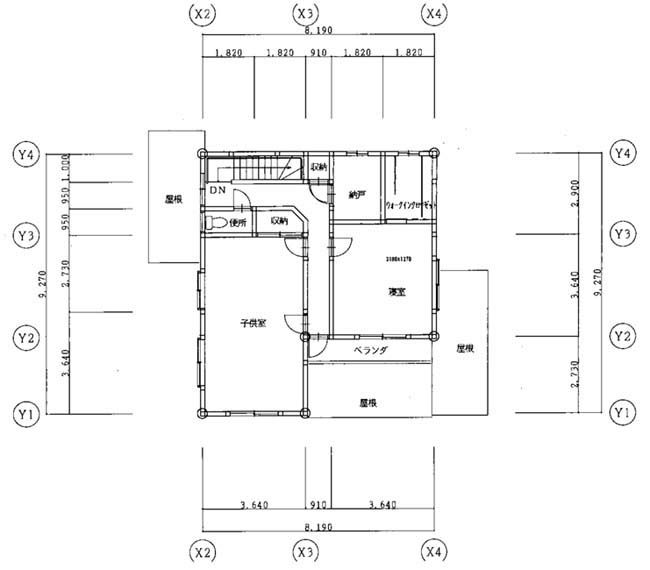
業者出し図面
(2階平面図)