マルタ設計長野 サイトマップ

自分らしい家造りをサポートします

自分らしい家造りとは? 自分らしい家が完成するまでの期間 自分らしい家造りの手順 自分らしい家造りをしたお客様の声
事務所概要 取扱業務 プロフィール 問合せ方法

良勝田(仮名)さん宅の
家が出来るまでの日記



メール初心者の方へ

文章内に出てくる「>」は前のメール文章の引用を表します。
読み進めると重複していることに気が付くと思います。

問い合わせ〜敷地確認まで 4月
敷地の大きさ〜坪単価まで 5月
動線プラン〜概算見積りまで 6月
3Dパースの打合せ〜試掘 7月
試掘の疑問〜最終全体金額確認 8月
業者見積り出し〜 9月
完成写真 3月

8月

試掘の疑問

8月1日
良勝田(仮称)さんからメールが届いた
  こんばんは。
  夕方になり、やっと涼しくなってきました。
  でもそちらはまだまだ暑いんでしょうね。

  ユニットバスの希望メーカーですが、ヤマハということで
  お願いします。
  一応、だめかもしれないという事は覚悟しているつもりですが・・。
  

> 後、D建設との打ち合わせで地盤の件なのですが、試掘と言いまして
> 試しに今の地盤を掘ってみて土の状態を確認をすると方法がとれるの
> ですが如何ですか
>
> D建設では自分の所で基礎工事をするので機械を所有しています
>
> 簡単に行えるので良勝田(仮称)さんの了解が取れれば確認して貰った方が良いと
> 思っています。如何でしょうか
>
> 基礎工事の金額の目安が立てやすくなります
>
> 掘る位置は住宅を建てない部分で行いますので問題は無いと考えて
> います
>
> ご検討下さい

  これは、やはりやってもらった方がいいのでしょうか。
  主人は必要ないんじゃないかと言ってまして・・・
  ちなみにお金はかかるんでしょうか。
ちょっと言葉が足りなかったようである
D建設では機械を所有しているので無料で行って貰える事を伝えなかった為に必要ないと思われていると思う
8月2日
良勝田(仮称)さんにメールを送った
>   ユニットバスの希望メーカーですが、ヤマハということで
>   お願いします。
>   一応、だめかもしれないという事は覚悟しているつもりですが・・。

期待はあまりしないで下さい(金額差があり過ぎると問題外かも・・・)
代替え案もお考え下さい

> > 後、D建設との打ち合わせで地盤の件なのですが、試掘と言いまして
> > 試しに今の地盤を掘ってみて土の状態を確認をすると方法がとれるの
> > ですが如何ですか
> >
> > D建設では自分の所で基礎工事をするので機械を所有しています
> >
> > 簡単に行えるので良勝田(仮称)さんの了解が取れれば確認して貰った方が良いと
> > 思っています。如何でしょうか
> >
> > 基礎工事の金額の目安が立てやすくなります
> >
> > 掘る位置は住宅を建てない部分で行いますので問題は無いと考えて
> > います
> >
> > ご検討下さい
>
>   これは、やはりやってもらった方がいいのでしょうか。
>   主人は必要ないんじゃないかと言ってまして・・・
>   ちなみにお金はかかるんでしょうか。

言葉が足りなかったので補足します

遅からずお話をしようと思っていたのですが、この4月から瑕疵担保の保証期間が10年になりました

瑕疵担保とは構造的な問題や雨漏りなどについて問題があった場合無料で改修をしなければならいという法律です
業者が悪い場合は業者の責任で直せという事です
ですので、自然災害などは別の話となります

始まったばかりの法律でまだあまり馴染みのないお話だと思います

構造的な問題の部分に地盤沈下による基礎の沈下が含まれます
(床が斜めになったり、壁にひび割れが発生します)
業者とするとこれが死活問題になってしまいます

ですので事前に調べ問題のない設計をして現場が始まってから「これでは将来問題になる」というようなことが起きないために穴を掘らせて頂きたいと思っています

金額的には無料でのお話です(D建設打ち合わせ済み)

私とすると設計が終わり見積を取り、金額が決まって工事が始まってから穴を掘ってみたら、「この地盤ではダメだ」という事になっては基礎工事の増額が発生してしまうので良勝田(仮称)さんにご迷惑が掛かってしまうと思っています

それを未然に防ぐ為に住宅と別の部分で穴を掘らせて頂いて確認をしたいと思っています

是非、ご了承願えないでしょうか


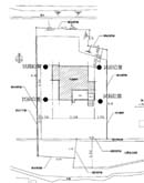
配置図を作りましたのでFAXします
駐車場の位置と穴を掘る位置(4ヶ所)をご確認下さい

試掘配置図
よろしくお願いします
多分、調査の金額を心配しての事だと思う
了承して貰えるだろう

試掘の了承

8月3日
良勝田(仮称)さんからメールが届いた
  こんにちは。

  試掘の件ですが、ぜひお願いします。
  そういう事でしたらやってもらった方が良いですよね。
  主人ももちろん納得してます。
  今はまだ造成工事中ですが、今週中には終わりそうだと、
  先日不動産屋さんは言ってました。

  配置図を見ました。駐車場の位置ですが、道路の所までは
  消雪パイプがきているので、反対の東側の方が冬は楽かな、と
  思いますが、どうでしょうか。井戸がちょっと邪魔ですね。
了承して貰って良かった
8月4日
良勝田(仮称)さんにメールを送った
>   ところで試掘の件ですが、ぜひお願いします。
>   そういう事でしたらやってもらった方が良いですよね。
>   主人ももちろん納得してます。
>   今はまだ造成工事中ですが、今週中には終わりそうだと、
>   先日不動産屋さんは言ってました。

わかりました
D建設と打ち合わせします

>   配置図を見ました。駐車場の位置ですが、道路の所までは
>   消雪パイプがきているので、反対の東側の方が冬は楽かな、と
>   思いますが、どうでしょうか。井戸がちょっと邪魔ですね。

おわかりのように井戸があるので駐車場を寄せるとデッキの前に来てしまいます
視界が妨げられるので難しいと思います(出来ない訳ではない)
もっと東へというのは井戸があるので入りません
井戸の位置は以前に土地を見に行った時に測ってありますのでそれ程間違っていません

別の方法とすると縦列駐車にすれば出来ますがちょっと不便でしょうね

後、不動産屋さんが道路を延ばして宅地を増やすという話がありましたが如何でしょうか
道路が延びれば今の位置でも問題がないと思うのですが・・・

又、道路が延びないのであれば道路の突き当たりに駐車場を作る事も可能だと思いますが如何でしょうか

又、お話をさせて頂きます
配置としては井戸が南東にあり駐車場が取れない
南西に設置するのが一番ベストだと思う
8月15日
メール連絡で20日良勝田(仮称)さん宅で打合せをする事になった
試掘も20日に行う事とした

細部の打合せ

8月20日
午前中に現場で試掘を行い、地盤の確認を行った
少し、地盤改良の必要があると思われた

午後は良勝田(仮称)さん宅で打合せを行った
外装部材の屋根材、外壁材、アルミサッシ、玄関ドアー、内装部材のフローリング、クロス、羽目板、建具などのカタログを山のように持って行って打合せを行った

全体的にコストに見合ったグレード選定と材質の与えるグレード感のバランスを考えて提案した

屋根材

外壁材

アルミサッシ、玄関ドアー

フローリング

クロス

羽目板

建具
途中まで完成している図面と照らし合わせながら各部の材料について説明をした
各部のグレードの考え方の承諾を取るために重い資料を沢山持って行った
グレードバランスを説明し、色については今後の打合せで選定していくことを伝えた

後は図面の内容説明を行った。打合せ記録を作成してメールを送る事にした

細部打合せ事項

8月22日
良勝田(仮称)さんに20日の打合せ記録をメールで送った
毎日暑い日が続いて嫌になりますね
夕立があった時期は少し涼しくなっていましたが今は雨が全然降らなくなってしまって暑さが治まりません
日曜日の現場も暑かったです

勘違いがあるといけなので打ち合わせの内容を確認させて頂きます(順不同)

1.浴室の窓はトーメイガラスとする。ブラインド取付
2.カーテン、ロールスクリーン、ブラインドの取付場所の確認−良勝田(仮称)さん再検討
  ブラインドは別途とする(ダイニング、玄関)
3.照明の雰囲気確認−西村検討、提案
4.1階便器は手洗い付、ウォシュレット付きで一体型が良い
  −西村確認、ウォシュレットの交換可能か(INAX)
  2階便器は手洗い付、暖房便座無し−安い物でOK
5.カーポートはヨドコウなどの壁、シャッター付きで考えていた
  位置は南西の隅とする
6.ユニットバスはグラニット浴槽、半身浴、洗面器台付にしたい
  出来ればヤマハを要望
7.洗面台はトステム、シフォーヌPLANSS-5間口750とする
8.システムキッチンはオーブンをヤメ、流し部分のグレードを下げる(サンウェーブ)
  排気は同時給排とする
9.北側には雪囲いを考える(床下点検ドアー、吐き出し窓)
10.屋外器、オイルタンク、ガスボンベの雪除けを考慮する
11.ウオークインに棚板を付ける
12.2階床の防音を考えたい−話声が聞こえない程度
13.階段にニッチを付けたい
14.ダイニングのワークテーブルの奥行きは700と450とする
15.既存のステンレス棚はリビングに置き、ワークテーブルを延ばす
16.ポストは壁貫通型とする。下駄箱の上に落ちる高さとする。下駄箱も工事に含む
17.冷蔵庫の大きさはW=600とする(有効で700空ける)
18.洗面所に洗濯物干し用のパイプを設置する
19.階高を押さえながら天井を高くするために構造体の梁が露出になる
   乾燥材を使用するが割れが入る可能性がある
20.洗面・脱衣のドアーの鍵はなしとする
   2階の寝室、子供室も鍵無しとする
21.2階のトイレは床を上げる(80o)
22.試掘調査の結果埋土が1100となっている(盆前施工)
   1300程度まで地盤改良をすることが一番ベターだと思う
   D建設では盛土の上でも転圧をすれば10年保証出せると言っている−保留
23.ガスコンロはプロパンとする
24.給湯機は石油ボイラーとする
25.ダイニングにFFを設置してオイルタンクを設置する
   オイルタンクの位置は給油し易い位置を考慮する
26.デッキ上の屋根はトーメイ屋根とする
27.外観の変更図提出−OK
28.2階の階段部分の手摺りは壁とする
29.融雪用の井戸は既存のままとする
30.融雪盤、メーター関係の移設は車庫で考える
31.玄関段差は20p程度とする

以上だったと思います。何か抜けていたり、勘違いがあったらご指摘ください

よろしくお願いします
かなり、細かい具体的な内容の打ち合わせとなった
ガラスをトーメイか型ガラスにするか。それに伴ってブラインド、カーテンなどの仕様を確認した
照明も希望の雰囲気を確認して後日提案することとした
便器は1階と2階のグレードを変えた(コストバランス)
キッチンもコストを下げる為に見え難い側のグレードを最低とした
機能面で必要な雪囲い用の金物を取りつけたり、2階床の防音性能のアップ、ポストのスタイル、冷蔵庫の大きさ等々いろいろな性能、必要性などの話をしながら仕様の提案、承諾を行った
それぞれの項目に従って提案のメリット、デメリット、一長一短がある中からの選択理由を話した。頻度の問題やコストの問題など選択基準はいろいろある。良勝田(仮称)さんも即答出来ない内容もかなりあった

外観変更

8月22日
良勝田(仮称)さんに外観の色についてメールを送った
外壁の色の希望はオレンジであったが、外壁材(カラー鉄板サイディング)ではオレンジがなかったのでグリーンでの提案を行った

南西立体図

南東立面図

カラー鉄板サイディング以外のサイディングを使用して吹き付けタイルやリシン吹き付けなどを行えばオレンジの外壁も可能である
コストや耐久性などを考慮してカラー鉄板サイディングを提案している
8月23日
良勝田(仮称)さんからメールが届いた
> 1.浴室の窓はトーメイガラスとする。ブラインド取付
> 2.カーテン、ロールスクリーン、ブラインドの取付場所の確認−良勝田(仮称)さん再検討
>   ブラインドは別途とする(ダイニング、玄関)

 コストダウンの為、カーテンもなるべくこちらで購入したいと思いますが、どうでしょうか。子供部屋のは手作りしようかとも考えています。

> 3.照明の雰囲気確認−西村検討、提案
> 4.1階便器は手洗い付、ウォシュレット付きで一体型が良い−西村確認、ウォシュレット
   の交換可能か(INAX)
>   2階便器は手洗い付、暖房便座無し−安い物でOK
> 5.カーポートはヨドコウなどの壁、シャッター付きで考えていた
>   位置は南西の隅とする
> 6.ユニットバスはグラニット浴槽、半身浴、洗面器台付にしたい
>   出来ればヤマハを要望

 ヤマハはあきらめることにしました。INAXの最低グレードのLBEHで浴槽をFRPから新エセンヌに変更というのはどうでしょうか。100万は超えてしまうのですが・・。

> 7.洗面台はトステム、シフォーヌPLANSS-5間口750とする

 SSよりもボウルの容量があって値段が安いLSにしたいと思います。PLAN LS−3でお願いします。


> 8.システムキッチンはオーブンをヤメ、流し部分のグレードを下げる(サンウェーブ)
>   排気は同時給排とする

 キッチンは出来るなら、グレードを下げずに102シリーズでいきたいのですが・・・102のイエローが気に入ってるので。無理でしょうか。

> 9.北側には雪囲いを考える(床下収納ドアー、吐き出し窓)
> 10.屋外器、オイルタンク、ガスボンベの雪除けを考慮する
> 11.ウオークインに棚板を付ける
> 12.2階床の防音を考えたい−話し声が聞こえない程度
> 13.階段にニッチを付けたい
> 14.ダイニングのワークテーブルの奥行きは700と450とする

 奥行きは600か650でもいいのではと思いますが、どうでしょうか。

> 15.既存のステンレス棚はリビングに置き、ワークテーブルを延ばす
> 16.ポストは壁貫通型とする。下駄箱の上に落ちる高さとする
>    下駄箱も工事に含む

 やはり壁貫通型はやめて、ポストを購入しようと思います。
 下駄箱もこちらで購入します。

> 17.冷蔵庫の大きさはW=600とする(有効で700空ける)
> 18.洗面所に洗濯物干し用のパイプを設置する
> 19.階高を押さえながら天井を高くするために構造体の梁が露出になる
>    乾燥材を使用するが割れが入る可能性がある
> 20.洗面・脱衣のドアーの鍵はなしとする
>    2階の寝室、子供室も鍵無しとする
> 21.2階のトイレは床を上げる(80o)
> 22.試掘調査の結果埋土が1100となっている(盆前施工)1300程度まで地盤改良を
    することが一番ベターだと思う
>    D建設では盛土の上でも転圧をすれば10年保証出せると言っている−保留
> 23.ガスコンロはプロパンとする
> 24.給湯機は石油ボイラーとする
> 25.ダイニングにFFを設置してオイルタンクを設置する
>    オイルタンクの位置は給油し易い位置を考慮する
> 26.デッキ上の屋根はトーメイ屋根とする
> 27.外観の変更図提出−OK
> 28.2階の階段部分の手摺りは壁とする

 もしも、予算に余裕ができたら、手すりにしたいです。無理でしょうね、多分。

> 29.井戸は既存のままとする
> 30.融雪盤、メーター関係の移設は車庫で考える
> 31.玄関段差は20p程度とする

それから外観図を見ました。グリーンでOKです。
ただ他にパープルグレーもなかなか良さそうと思いますし、確認申請の後で変更というのは可能ですか。
あと、ちょっと気になったのが玄関ポーチの壁なんですが、壁があることによって、光が入りにくかったりはしないのでしょうか。
なくても良いような気もするし、あった方が良いのであれば、そこに窓をつけたりすることは可能ですか。
変な事書いてすいません。

 以上、よろしくお願いします。
検討事項や要求が出てきている
打合せ記録を送ったので再検討してもらえているようだ
打合せ内容を確認しながら設計を進めることでお互いの勘違いが少なくなると思う
8月24日
良勝田(仮称)さんにメールを送った
またまた暑いです。と言ってもクーラーの中仕事をしていますが・・・

>  コストダウンの為、カーテンもなるべくこちらで購入したいと
>  思いますが、どうでしょうか。子供部屋のは手作りしようかとも
>  考えています。

カーテンは私の知り合い業者で安く購入出来るところがあります
カタログ価格の50%くらいで購入できますので安いと思います
カーテン関係は別途という事で考えても対応は出来ますのでゆっくりお考え下さい

>  ヤマハはあきらめることにしました。INAXの最低グレードの
>  LBEHで浴槽をFRPから新エセンヌに変更というのは
>  どうでしょうか。100万は超えてしまうのですが・・。

今までの経験で大体の話しですがINAXで75%、ヤマハで68%、トステムで65%
ナショナルで70%サンウェーブで75%という感じです
業者によって取引量に差がありますので一概には言えませんのが大体の目安に出来ると思います

上記は取付費は入っていません。それから、物によって値引きも違うようですので目安として見てください

ヤマハとしたらどれが良いですか

> > 7.洗面台はトステム、シフォーヌPLANSS-5間口750とする
>
>  SSよりもボウルの容量があって値段が安いLSにしたいと 
>  思います。PLAN LS−3でお願いします。

PLAN LS-6では如何でしょうか
丸い鏡をお選びになったと思いますがシンプルという意味ではこちらの方が良いと思いますが私の好みです

私の好みが良いという訳ではありませんが如何でしょうか

>  キッチンは出来るなら、グレードを下げずに102シリーズでいきたい
  のですが・・・102のイエローが気に入ってるので。
>  無理でしょうか。

これは流し台の部分もイエローにしたいという事でしょうか

この前の見積は流し側は101シリーズで収納側は102シリーズでの見積です

サンウェーブですので180×0.75で135万円になっています
すべてイエローという事になると少しアップしますね・・・
でも、お気持ちは良くわかります

オーブンをやめているので全て102シリーズで取りあえずどうかというところでしょうか

>  奥行きは600か650でもいいのではと思いますが、どうでしょうか。

少しは大きい方が使い勝手も良いので650で如何でしょうか

>  ポストはやはり壁貫通型はやめて、ポストを購入しようと思います。
>  下駄箱もこちらで購入します。

わかりました
通販は結構安いですからね
私は別購入の方が良いと思います
いろいろな家具屋さんをご覧下さい

>  もしも、予算に余裕ができたら、手すりにしたいです。
>  無理でしょうね、多分。

これは壁で考えさせて頂こうと思います
ニッチは付けますのでお願いします

>  それから外観図を見ました。グリーンでOKです。
>  ただ他にパープルグレーもなかなか良さそうと思いますし、
>  確認申請の後で変更というのは可能ですか。

言葉が足りなかったようです

色に付いては問題ありません
形状の変更でなければ問題ありません

>  あと、ちょっと気になったのが玄関ポーチの壁なんですが、
>  壁があることによって、光が入りにくかったりはしないのでしょうか。
>  なくても良いような気もするし、あった方が良いのであれば、
>  そこに窓をつけたりすることは可能ですか。
>  変な事書いてすいません。

あまり気にせずお聞き下さい

玄関側の壁には窓を設けています。それとデッキ側からは光が入るので問題ないと思います
この前のお話は熱気がこもりぎみになるという事です


お渡しした資料で諸経費は算出してみましたか?

キッチンはD建設の見積段階で65万円との事でした定価に直すと80万円程度になります(水切り棚は別で見ている)
ですので80+40(30前回増額分÷0.75)で120万円の定価キッチンという事になります
現在の見積は180-20(オーブン)で160万円程度(定価)になります
40万円程度のアップになりますが取りあえずこれで図面にします
予算内に納まるかはあまり期待しないで下さい

別案ですが車庫を取りあえず見送りという考え方は如何でしょうか
春に住宅が完成しますので冬までに作れば良いという考え方と一冬は道路のすぐ近くに止めて野天で我慢するというのも可能かと思います(アパートは融雪はあるが野天である)場合によっては道路に止めてしまっても・・・

そうすると希望通りのユニットバスもキッチンも含めた形で予算内に納まると思います

ご検討下さい
概算を出しているのでそれを元に金額調整の段階に入っている
諸経費や後工事と出来る物を検討して予算内になるように調整ということである
諦めなければならない物、どうしても我慢できない物と建主が一番辛い選択をしなければならない段階に入っている
8月26日
良勝田(仮称)さんからメールが届いた
浴室はヤマハでしたら、NUGシリーズのEグレードで。

> PLAN LS-6では如何でしょうか
> 丸い鏡をお選びになったと思いますがシンプルという意味では
> こちらの方が良いと思いますが私の好みです
>
> 私の好みが良いという訳ではありませんが如何でしょうか
>
  その丸い鏡がいいなと思ったもので・・。

> これは流し台の部分もイエローにしたいという事でしょうか
>
> この前の見積は流し側は101シリーズで収納側は102シリーズでの
> 見積です
>
> サンウェーブですので180×0.75で135万円になっています
> すべてイエローという事になると少しアップしますね・・・
> でも、お気持ちは良くわかります
>
> オーブンをやめているので全て102シリーズで取りあえず
> どうかというところでしょうか
>
  とりあえず、お願いします。後、シンクはエリアジャンボシンクでお願いします。

> > 奥行きは600か650でもいいのではと思いますが、どうでしょうか。
>
> 少しは大きい方が使い勝手も良いので650で如何でしょうか

  650でいいです。

> >  もしも、予算に余裕ができたら、手すりにしたいです。
> >  無理でしょうね、多分。
>
> これは壁で考えさせて頂こうと思います
> ニッチは付けますのでお願いします
>
  私がすごい勘違いをしていました。壁といっても腰の高さ位の
  壁なんですよね。それなら手すりでなくてもいいです。
  天井までの壁だと思い込んでいました。

> 玄関側の壁には窓を設けています。それとデッキ側からは光が入るので
> 問題ないと思います
> この前のお話は熱気がこもりぎみになるという事です

  わかりました。  

>お渡しした資料で諸経費は算出してみましたか?

  不明なものもあるのでおおざっぱですが、150万位です。

> キッチンはD建設の見積段階で65万円との事でした定価に直すと
> 80万円程度になります(水切り棚は別で見ている)
> ですので80+40(30前回増額分÷0.75)で120万円の定価キッチン
> という事になります
> 現在の見積は180-20(オーブン)で160万円程度(定価)になります
> 40万円程度のアップになりますが取りあえずこれで図面にします
> 予算内に納まるかはあまり期待しないで下さい
>
> 別案ですが車庫を取りあえず見送りという考え方は如何でしょうか
> 春に住宅が完成しますので冬までに作れば良いという考え方と
> 一冬は道路のすぐ近くに止めて野天で我慢するというのも可能かと
> 思います(アパートは融雪はあるが野天である)
> 場合によっては道路に止めてしまっても・・・
>
> そうすると希望通りのユニットバスもキッチンも含めた形で予算内に
> 納まると思います

  車庫ですが、そういう考え方もあったんですね。
  とりあえずなくてもいいので、見送りにします。
  今朝の新聞に車庫の折込チラシがあったんですが、先日の打ち合わせの時に30万
  位と言いましたが、もっと高かったです。 
  安くても70万位します。

  車庫を見送る事で、希望どおりのキッチンなどに出来たら、とてもうれしいですが・・・。
最終的な方向が出たと思う
良勝田(仮称)さんも大体を理解して貰えていると思う
最終図面の完成を目指す

最終全体金額確認

8月30日
良勝田(仮称)さんにメールを送った
このところ夕方から少し涼しくなるようになりました
朝は結構涼しく、寒いくらいです

以前提示させて頂いた全体金額の2280万円の予算に対して以下のように変わってきています

1.キッチンは 40万円UP(全て102シリーズ)
2.ユニットバスは 35万円UP(NUGのEでミスト暖房なし)
3.水道引き込みが 20万円UP(ガス工事と相殺)
4.カーテン別途 20万円DN
5.下足入れは入っていなかった
6.手洗い器のやめ 7万円DN(以前の全体金額提示時)
7.差額 16万円DN (〃)
8.車庫をやめ    72万円DN
--------------------------------------------
            2260万円
以上のようになります
20万円ありますがカーテン代ということで考えると大体ぴったりの数字になります

私としてはD建設に車庫込みで2250万円が良勝田(仮称)さんの予算だという話をしようと思っています

D建設が2260+72=2332万円程度で出てくれば車庫分を引いてちょうど良いという事になります
2332万円より少ない金額で出てくれば予算内に納まるということになります
如何でしょうか

照明やコンセントの位置が未確認ですが少し早めにD建設に見積を出したいと思いますが如何でしょうか

というのは明日、公庫の申請書をもう一度出しに行こうと考えています
その時にD建設に図面を渡してしまえば良いかと思っています
変更はあるということで渡そうと考えています

ということで次回の打ち合わせは6か7日でも良いかと思います
見積り出しに当り最終予算の確認をした
9月



トップページ