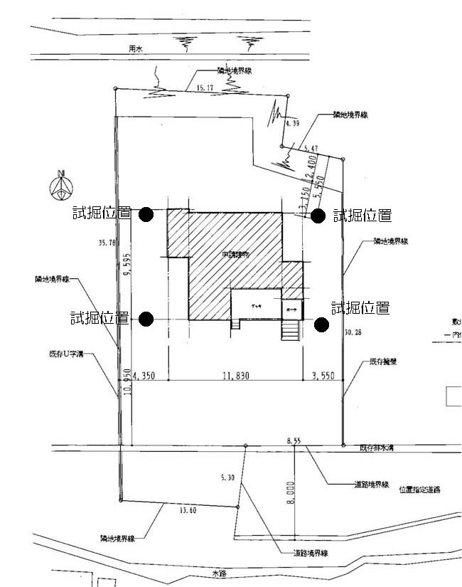
試掘配置図

試掘の位置は4ヶ所としている
基礎を作る部分は地盤を痛めてしまうので建物を外して行う事としている