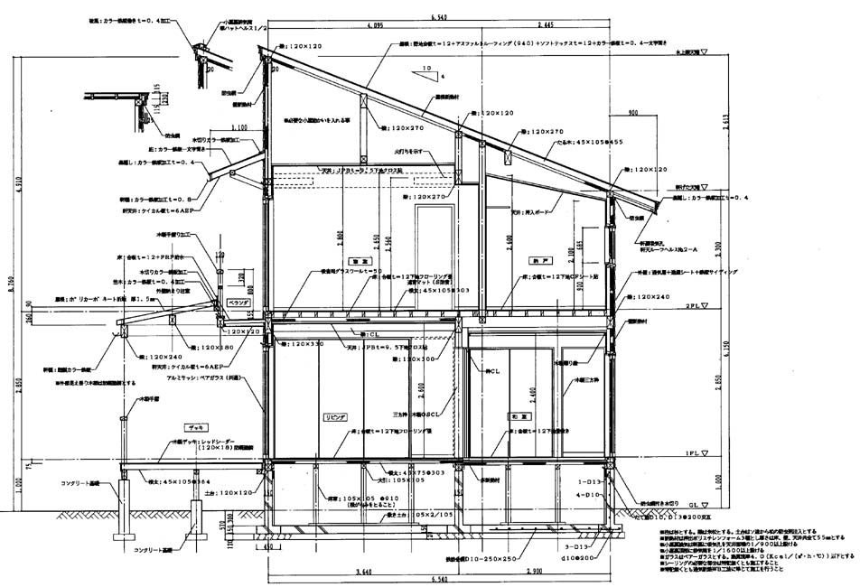
業者出し設計図
(矩計図)