第004号 発行 平成19年9月23日建設委員会事務局
![]()
東越谷一丁目自治会館建設委員会だより
![]()
爽やかな季節になりました。建設委員会の会合を重ね、市役所の建築確認が8月27日
におりました。そこで、建設に先立ち去る9月14日に自治会館建設用地で地鎮祭を行い、
新自治会館建設がスタートしました。完成は平成20年1月中旬を予定しています。
工事期間中は、近隣のかたがたには、ご迷惑をかけることもあろうかと思いますが、ご協
力とご理解を賜りたくお願いします。
1.地鎮祭の様子
建設委員長をはじめ建設委員のみなさまが参加して、地鎮祭を行いました。

2.新自治会館の概観図
玄関までのスロープを設置し、二階は倉庫スペースを確保してあります。

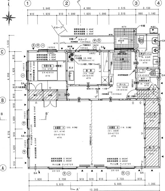
3.新自治会館の間取り図

間取りは図に示すように、会議スペースをパーティションで仕切り広くすることもできるよう
にしました。また、8帖の和室を設けました。トイレは身障者も対応できるように配慮してあり
ます。各部屋に空調設備も設置する予定です。
以上