☆ 外枠を作る
外枠の幅と奥行きは紙パックの大きさ(7cm)となります。
高さは10〜12センチ程度が良いと思います。ここでは12センチのものを作ることにします。
(1)新聞紙を丸めた団子を紙パックに詰め、口をクリップで閉じる
・先ず、正面(窓を作る側)を決める
紙パックの継ぎ目が後ろになる様に正面を決める…継ぎ目が窓と反対側にする。
・新聞紙を半分に切って丸め団子を6個作る
作業中に紙パックがつぶれないようにキッチリ詰める。
紙パックの口をクリップで留める。
 新聞紙で作った団子 |  団子を6個詰め口をクリップで留める |
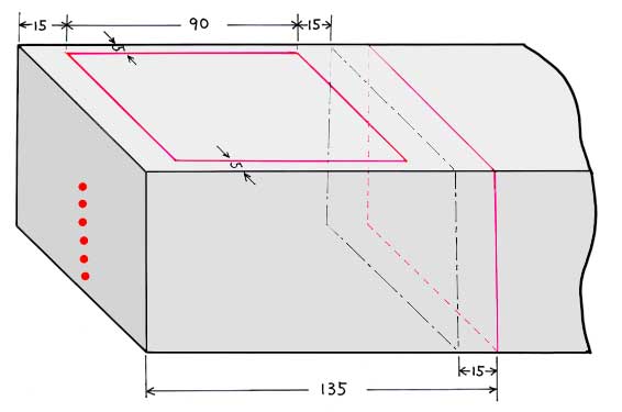
(2)紙パックに製図する
・三角定規と物差しを使って正確に製図する。
(3)折り線(黒い一点鎖線)を千枚通しでなぞる
・折り曲げやすくするための作業
(4)カッターで窓を切り抜く
・窓枠の線(赤い線)をカッターで切り窓を作る
定規を当てて線のうえを真っ直ぐに切る。
(5)外枠を切り離す
・紙パックから外枠を切り離す
窓の右側の赤い線に沿って、カッターで切る
(6)底に凧糸を通す穴をあける
・必要な数だけ(必要なシーン数)、図では6個になっている。
(7)新聞紙の団子を取り出す
(8)折り曲げる部分を4つの部分に切り離す
(9)ボンドで貼る
・貼り合せる部分にサンドペーパーをかける
・ボンドを塗り、貼り合せて、クリップで留める
・ボンドが乾くのを待つ
 折り返して貼りクリップで固定 |
(10)これで外枠は完成
 完成した外枠 |
☆ 仕切り板を作る
仕切り板は外枠の中にセットして、ディスプレーの場所と収納の場所を分けるために 使います。
また、仕切り板は最後のシーンの絵や文字を書き込む場所でもあります。
(1)紙パックを開き、製図する
・物差しと三角定規を使って正確に製図する
・図の縦の2本の線は紙バックを折り曲げたところ
(2)はさみで切る
・線に沿って真っ直ぐに切る
(3)一点鎖線の上を千枚通しでなぞるように線を引き表面に傷を付ける
・上の凸の部分は仕切り板の補強の部分
・補強の部分を折りやすくするため傷を付ける
(4)補強の部分を外側(印刷されている側)に折り曲げボンドで貼り合わせる
・張り合わせる部分にはサンドペーパーをかける
・ボンドで貼り、クリップで固定する
(5)中央にラストシーンの絵を描く
・内側にサンドペーパーをかけ、コピー用紙を貼る
紙パックには絵や文字を書きにくいので、コピー用紙などを貼る
・絵を描く
下の写真を参考にしてください。 ↓
☆ ディスプレー板を作る
ディスプレーする絵を描く板を作ります。 左右の対象性と寸法を正確に作ってください。
(1)紙パックを開き、継ぎ目のある面を切り取る
(2)高さ9.3センチ、幅6.8cmに切る…幅は紙パックの 面一杯に切り取る
幅が狭いと外枠との隙間が大きくなり、画面の切り替え の時真っ直ぐに動かず、収納場所に入らなくなります。
(3)下側を両サイドに向け3ミリ斜め上にカットする
(4)ディスプレーするシーンを描く
(5)下側に中央に穴を開け、タコ糸を縛りつける…正確 に中央に空け、糸も中央にセット
タコ糸の長さは30センチほど、結び目にボンドを塗ると 解け難くなります。
☆ 外枠の底にタコ糸を通す穴を開ける
ディスプレー板を切り替えるためのタコ糸を通す穴を 外枠の底に開けます。 穴の位置はほぼ中央に一列に、ディスプレー版の 収納場所の部分(仕切り板の後ろ)に空けます。
左側が窓の位置です ⇒
|