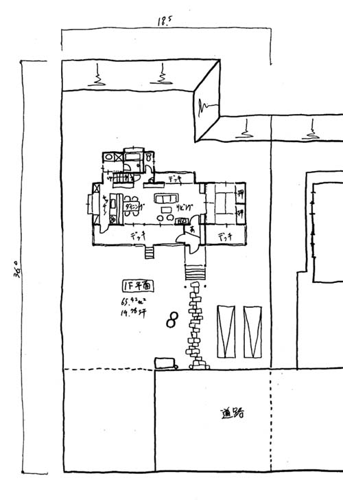
敷地確認用配置・1階平面図

敷地の大きさは上記のような感じになります
上記程度の建物は入ると思います
結構大きな敷地だと思います
部屋も南に面して取れているのがリビング、ダイニング、和室、キッチンとあります
大きさ的には問題ないと思います