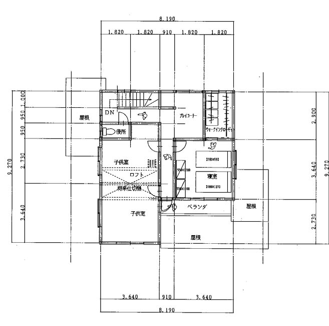
2階平面変更プランD

プレイコーナーを止めて納戸とする方向で検討したプランである。室名はプレイコーナーとしているが説明時に納戸の利用がベストな選択ではないかという話と半間の収納スペースを作る事を提案している。
半間の収納スペースは小さな箱や小物の収納に重宝するので是非設置した方が後で喜ばれると思っての事である。
寝室はベットを置くと少し狭いので広くする事とした。タンスを置くスペースも確保出来る。
子供室からはベランダに出れなくても廊下から出れれば問題ないという事で予算を押さえている。その代わり、収納を設けた。
ロフトも子供室には設ける事としている。
トイレには手洗器を設けず、便器付きの手洗いを設ける。
全体的に無駄の無いまとまったプランとなったと思う。