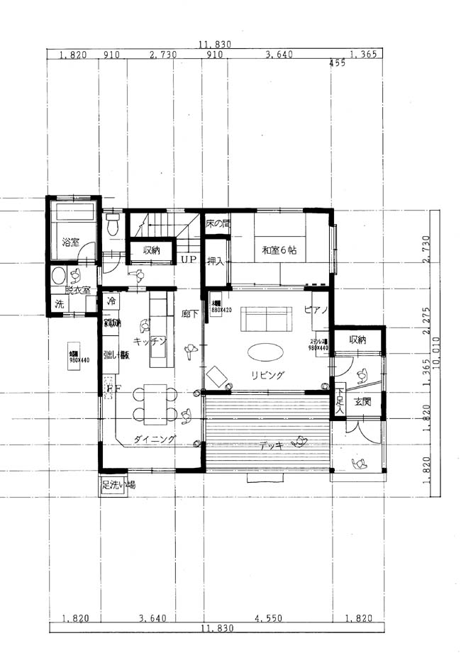
1階変更プラン

玄関を少し小さくして収納を増やしています
デッキも少し小さくなっています
階段部分にあった地下への階段を収納にしています
浴室の窓を北側に設けました
ピアノを置くスペースを書き込んであります
変更部分は以上です