地御前の町屋図

   
 
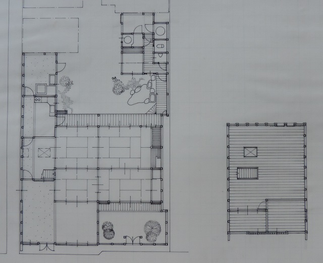
廿日市の民家   なつかしい藁葺屋根の民家   廿日市の民家図   廿日市の町屋図